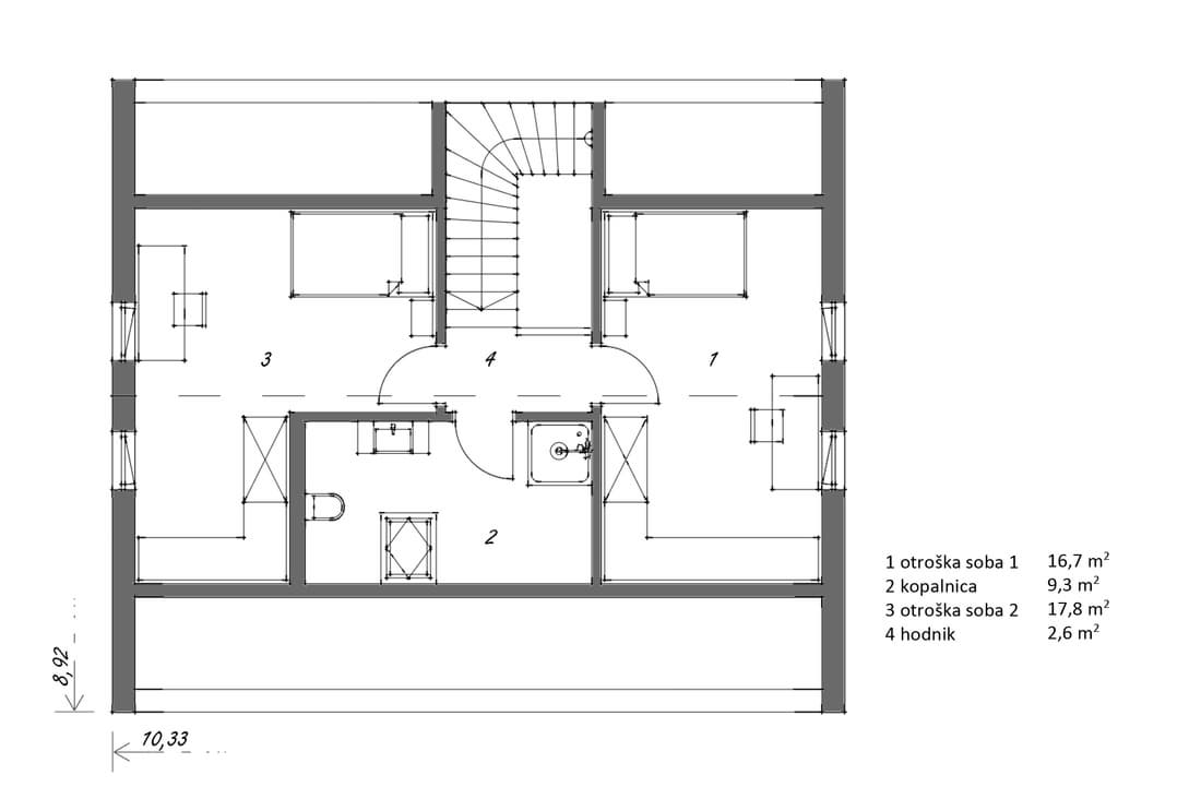
Minimalistično in skrbno načrtovana tipska montažna hiša ALFA 125, nudi vse kar potrebuje manjša družina. Notranjost je zasnovana svetlo in udobno, k čemer pripomorejo steklene površine. Te ne le v notranjost prepuščajo sončno svetlobo ampak tudi popestrijo fasado.





